一、煤矸石窑炉基本情况
年产3000万块标砖的隧道窑生产线2条,煤矸石窑炉冷却段温度排烟在200-600℃,本方案采用热管换热器回收冷却段的烟气余热用于厂房采暖。
二、热管技术及应用情况的简介
(一)、热管技术介绍
1.热管及热管换热器工作原理和基本特性
热管起源于二十世纪六十年代的美国,1967年一根不锈钢-水热管被送入地球卫星轨道并运行成功。热管理论一经提出就得到了各国科学家的高度重视,并展开了大量的研究工作,使得热管技术得以很快发展。热管技术开始主要用于航天航空领域,我国自二十世纪70年代开始对热管进行研究,自80年代以来相继开发了热管气-气换热器、热管余热锅炉、高温热管蒸汽发生器、高温热管热风炉等各类热管产品。由于碳钢-水两相重力式热管结构简单、价格低廉、制造方便、碳钢-水相容性的基本解决,使得此类热管在动力、化工、干燥、建材等领域内得以广泛应用。
重力式热管的基本工作原理如图表1所示,典型的热管由管壳、外部扩展受热面、端盖组成,将管内抽成1.3×(10-1~10-4)Pa的负压后充入适量的工作液体,然后加以密封。
当热管的蒸发段受热时热管内的工质蒸发汽化,蒸汽在微小压差下流向冷凝段放出热量凝结成液体,在重力的作用下流回蒸发段。如此循环不已,热量就由一端传到了另一端。热管的传热原理决定着热管有以基本特性:
很高的轴向导热性,热管内部主要靠工作液体的汽、液相变传热,热阻很小,因此具有很高的导热能力。与银、铜、铝等金属相比,单位重量的热管可以传递几个数量级的能量。
优良的等温性,热管内腔的蒸汽是处于饱和状态,饱和蒸汽的压力决定于饱和温度,饱和蒸汽由蒸发段流向冷凝段所产生的压力差很小,因而热管具有优良的等温性。
因为热管有以上的结构和特性,所以由热管组成的热管换热器具有以下优点:
热管换热器可以通过换热器的中隔板使冷热流体完全分开,在运行过程中即使单根热管因为磨损、腐蚀、超温等原因发生泄露,也只是单根热管失效,而不会发生冷热流体的混杂。所以热管换热器用于易然、易爆、腐蚀等流体的换热场合具有很高的可靠性。
热管换热器的冷、热流体完全分开流动,可以比较容易的实现冷、热流体的完全逆流换热,获得较大的对数温差。同时冷热流体均在管外流动,由于管子对流体扰动的作用使得管外流动所具有的换热系数远高于管内流动所具有的换热系数,并且管外流动两侧受热面均可获得充分的扩展。这样换热器可以做的非常紧凑,用于品位较低的热能的回收非常经济。
对于含尘量较高的流体,热管换热器可以在设计时对热管的排布尺寸较容易的进行调整,解决换热器的磨损问题。
热管换热器用于带有腐蚀性的烟气的余热回收时,可以通过调整蒸发段、冷凝段的传热面积来调整冷、热两侧的热阻,从而达到调整热管管壁温度的目的,使热管能避开的腐蚀区域。
2.重力式热管换热器的应用范围
由于重力式热管换热器本身的优良特性使得该种热管换热器的应用范围非常广泛,下面简述几个应用领域以作说明。
在动力工程中的应用。主要的应用是热管换热器用作锅炉的低温级空气预热器,解决低温预热器腐蚀、堵灰、磨损问题。热管式空气预热器相对于管式空气预热器有以下优点:①可以解决漏风问题。②可以减轻腐蚀。原因是壁温可调,可使之避开严重腐蚀的温度区域(壁温与腐蚀速度的关系见下图)。第二由于热管具有优良的等温性,所以每根热管的壁温基本上都是一个定值,而管式空气预热器的每根管子的壁温都是一个范围,这样在锅炉运行工况变化时,管式空气预热器的所有管子都有可能处于严重腐蚀区,而热管式空气预热器只有部分管子可能处于严重腐蚀区。③具有良好的防堵灰性能。因为腐蚀和堵灰是两个紧密相关的问题,腐蚀问题的解决就防止了管壁上的结露,从而也就防止了严重积灰的发生。根据经验,热管式空预器可以比管式空预器管壁温度高30℃,这就可以大大减少堵灰和腐蚀。
图表 1腐蚀速度与壁温的关系
三、 炉窑参数及设计依据
窑炉参数:冷却段引风机流量72000M3/h,全压1321MP,功率55KW。
采暖面积:1500M2.
采暖热负荷按:180瓦/时
采暖直接热负荷=1500X180=270千瓦/时
管道热损失及热负荷余量取15%
设备换热量=270*1.15=310.5千瓦/时
四、换热器
热水方案热力参数及结构参数
|
换热器入口烟气温度 |
400℃ |
|
换热器出口烟气温度 |
150℃ |
|
换热器换热量(千瓦) |
160 |
|
热水水量 |
6t/h |
|
冷水入口温度 |
60℃ |
|
热水水出口温度 |
80℃ |
|
换热器台数 |
1 |
|
换热管材质 |
螺旋肋片管热管式 |
|
外形尺寸 |
φ1.5×0.8×1.3(高) |
方案特点:于常规省煤器及管式空预器相比,热管式具有寿命长,温降大,体积小,检修工作量小的特点。
需要换热器台数=310.5/160=2台
换热器需要台数为2台。
蒸汽方案热力参数及结构参数
|
换热器入口烟气温度 |
400℃ |
|
换热器出口烟气温度 |
170℃ |
|
产气量 |
0.2吨 |
|
蒸汽压力 |
0.3Mp |
|
换热器台数 |
1 |
|
换热管材质 |
螺旋肋片管热管式 |
|
外形尺寸 |
φ2.3×0.9×2.7(高) |
三台换热器效益分析
节煤量约为102KG/H
全年节煤量为714吨
全年效益为:714X1000=71.4万
以余热换热器预期寿命8年计算,总共可以节约571.2万元。从以上数据可以看出经济效益是很显著的。
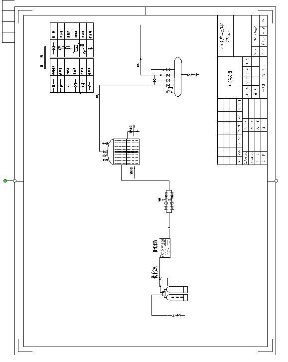
六.热力系统图



0312-5030889
首页
电话
产品